Rif. 4069 - LOCALE COMMERCIALE FRONTE STRADA
San Marzano sul Sarno (Salerno) -
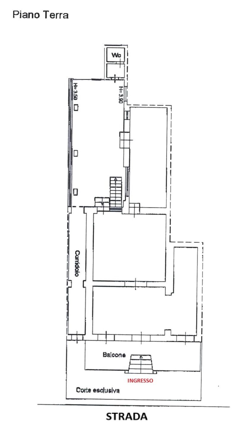
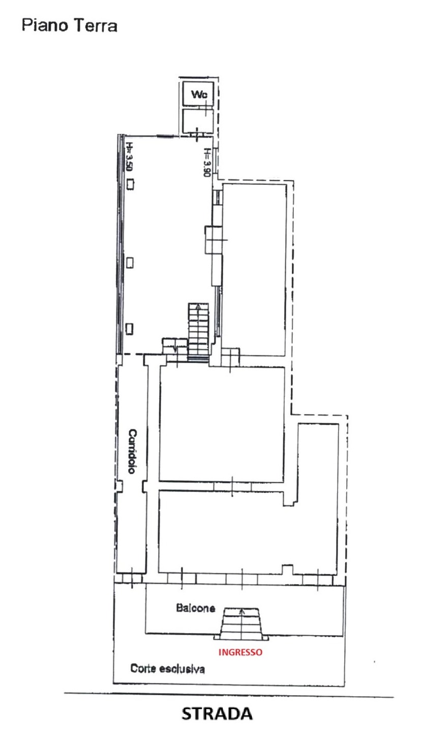
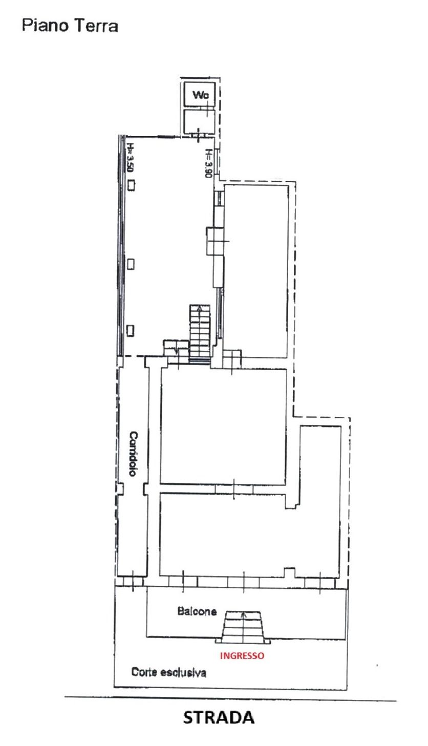
Rif. 4069 - Locale commerciale fronte strada di 150 mq, con doppio ingresso e tre vetrine, oltre ad ampia cantina annessa accessibile dall'interno.
€ 1.600,00
| Riferimento | 4069 |
|---|---|
| Tipologia | LOCALE COMMERCIALE |
| Stato immobile | buono stato |
| Tipo di contratto | AFFITTO non residenziale |
|---|---|
| Prezzo | € 1.600,00 |
| Comune | San Marzano sul Sarno |
|---|---|
| Provincia | Salerno |
| Regione | Campania |
| Stato | Italy |
| Classe energetica | in corso |
|---|---|
| m² | 150 |
Riferimento
TIRRENO IMMOBILIARE
S.V.TORIO - PIAZZA AMENDOLA
392 18 39 725
annunci.tirrenoimmobiliare@gmail.com
www.tirrenoimmobiliare.info
S.V.TORIO - PIAZZA AMENDOLA
392 18 39 725
annunci.tirrenoimmobiliare@gmail.com
www.tirrenoimmobiliare.info
Documenti allegati
Dimensione: 97,55 KB
Per avere ulteriori informazioni su questo annuncio è sufficiente inserire i dati richiesti nel form sottostante e premere "Invia Richiesta"
Salve, siamo lieti di ricevere la tua richiesta.
I campi in grassetto sono obbligatori.






planimetria
